关于紫轩君苑项目的规划公示
搜狐焦点网邯郸站 2021-10-28 09:10:19
用手机看
扫描到手机,新闻随时看
扫一扫,用手机看文章
更加方便分享给朋友
邯郸市自然资源和规划局
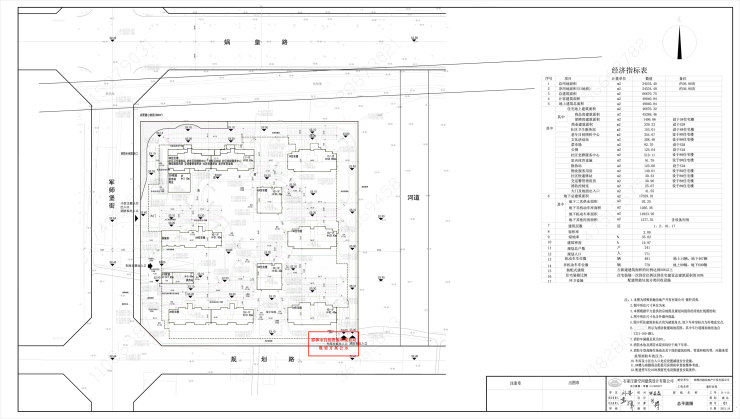
关于紫轩君苑项目的规划公示
为便于群众参与城市规划管理,保证城市规划顺利实施,我局对该项目规划设计方案总平面图进行批前公示,公示期间如您对该项目方案有不同意见,请及时向邯郸市自然资源和规划局反馈。
联系单位:邯郸市自然资源和规划局处、行政许可服务处
联系电话:3125512
监督电话:2031897
建设单位名称:邯郸世融房地产开发有限公司
建设项目名称:紫轩君苑
建筑性质:住宅
建设位置:娲皇路以南,军师堡街以东(新区经一街以东)
建筑面积:66670.75 m2
建筑高度:详见总平面图
公示时间:2021年10月27日至2021年11月5日
附:建设工程设计方案总平面图
来源:邯郸市自然资源和规划局
2021年10月27日
声明:本文由入驻焦点开放平台的作者撰写,除焦点官方账号外,观点仅代表作者本人,不代表焦点立场。


