邯郸市自然资源和规划局:关于美的悦然里项目的规划公示
搜狐焦点网邯郸站 2021-03-15 09:16:34
用手机看
扫描到手机,新闻随时看
扫一扫,用手机看文章
更加方便分享给朋友
关于美的悦然里项目的规划公示
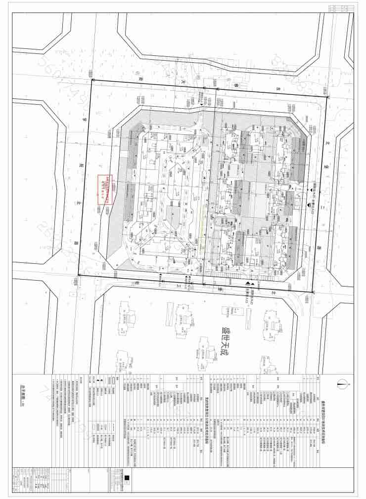
为便于群众参与城市规划管理,保证城市规划顺利实施,我局对该项目规划设计方案总平面图进行批前公示,公示期间如您对该项目方案有不同意见,请及时向邯郸市自然资源和规划局反馈。
建设单位名称:邯郸市美益房地产开发有限公司
建设项目名称:美的悦然里
建 筑 性 质:办公、商业
建 设 位 置:东柳大街以东、学院北路以北
建 筑 面 积:58869.49 m2
建 筑 高 度:详见总平面图
公 示 时 间:2021年3月2日至2021年3月12日
附:建设工程设计方案总平面图
来源:邯郸市自然资源和规划局
声明:本文由入驻焦点开放平台的作者撰写,除焦点官方账号外,观点仅代表作者本人,不代表焦点立场。


