邯郸市关于五得利大厦项目的规划公示
搜狐焦点网邯郸站 2018-04-13 09:37:24
用手机看
扫描到手机,新闻随时看
扫一扫,用手机看文章
更加方便分享给朋友
邯郸市关于五得利大厦项目的规划公示
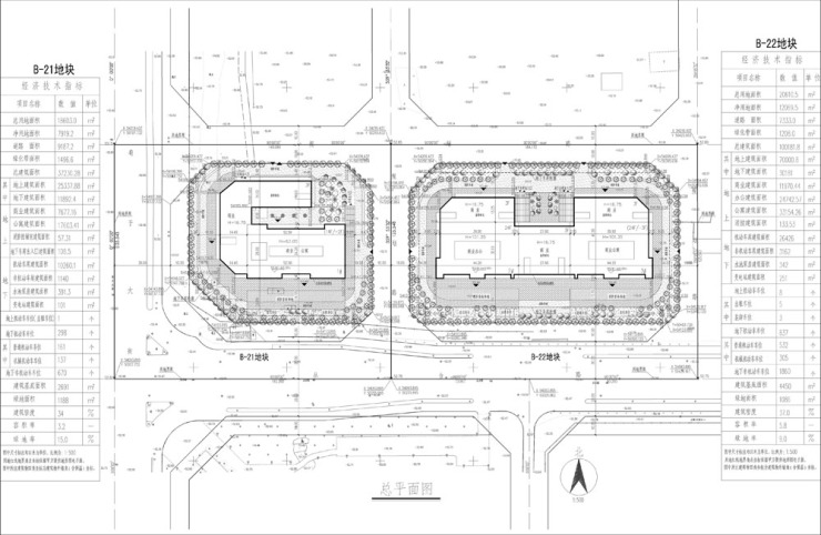
为便于群众参与城市规划管理,保证城市规划顺利实施,依据河北省住建厅《关于加强和完善城市规划公示公布工作的通知》,我局对该项目规划设计方案总平面图进行批前公示,相关查询还可登录邯郸市城乡规划局网站(http://www.hdgh.gov.cn/)。公示期间如您对该项目方案有不同意见,请及时向邯郸市城乡规划局反馈。
联系单位:邯郸市城乡规划局建筑处
联系电话: 3125582
监督电话: 3125561

声明:本文由入驻焦点开放平台的作者撰写,除焦点官方账号外,观点仅代表作者本人,不代表焦点立场。


